Модульный дом

Модульный дом в Астрахани

Современный модульный дом в Астрахани вы можете посмотреть у нас. Мы поможем вам выбрать отделку, планировку, комплектацию, мебель и сделать правильный выбор.

Теперь подробнее по модульному зданию.

Модульный дом состоит из блоков. Он относится к блочно-модульным зданиям, быстровозводимым конструкциям. Исходя из нужных вам размеров производятся блоки на металлокаркасе, которые в дальнейшем будут монтироваться в одно цельное здание.

Модульный дом

– производится на заводе, так же на заводе получает внутреннюю и внешнюю отделку, возможно к дому заказать мебель. Так как мы производим большое кол-во зданий, вы получите мебель и прочие решения у нас с большой выгодой.

Модульный дом в Астрахани

Модульный дом в Астрахани

Модульный дом в Астрахани

Модульный дом в Астрахани

 

Конструкция модульного дома

Как уже ранее говорили, модульное здание основано на метеллокаркасе. Металлический швеллер – 100 мм., усилен уголком 25мм, стойки из проф. трубы. Дно и потолок металлические.

Отделка модульного дома

Изнутри доска 22 мм через одну, ДСП 16мм, плинтус ПВХ, линолеум – на выбор заказчика. внутренняя отделка: потолок и стены – на выбор заказчика (стандартная или базовая Вагонка, ПВХ)

Снаружи Модуль обшит оцинкованным профлистом С-8.

Оснащение модульного дома

Все на выбор и желание заказчика. Это:

  • Электрика
  • Варианты отделки
  • Окна
  • Сан узлы
  • Раковины, душевые, бойлеры, унитазы
  • Кровати, столы, стулья, шкафы и пр.

 

Модульный дом в Астрахани: порядок выполнения заказа

Разрабатываем проект и сметуЗаключаем договорПроизводство модульного домаДоставка и Монтаж

Требуется модульный дом в Астрахани? Наши специалисты, получив данные здания, скажут точные расценки и сроки строительства.

После согласования проекта и сметы мы Заключаем официальный договор. В нем предусмотрены все нюансы, чтобы в будущем не было неприятных неожиданностей.

Производство модульного здания соответствует с нормами согласно техническому заданию. У нас качественная внутренняя система контроля качества производства.

Доставка до места сборки и сборка здания.

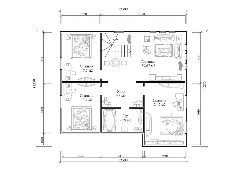
Проекты жилого модульного дома:

 

У нас есть примеры готовых жилых модульных домов

Это всего лишь примеры модульных домов которые мы произвели и можем сделать. Вы можете заказать проект под себя, со своей планировкой.

Использование жилых модульных домов

значительно экономит ваше время и деньги. В обоих случаях вы экономите на сроках строительства, т. к. срок производства с учетом загруженности составляет от 10 до  24 дней. Жилые модульные здания гораздо дешевле капитального строительства, скорость сборки занимает считанные дни. При этом модульные дома достаточно функциональны и ни чем не отличаются от обычного здания. Вы получаете готовое здание с отделкой, монтажом под ключ в течении месяца.

Вы можете оставить заявку и получить расчет стоимости модульного дома прямо сейчас!

Заказать модульный дом в Астрахани

Заказывайте модульное здание в Астрахани под ключ у нас. Мы обеспечим лучшие цены и качество, а так же скорость производства и возведения конструкции вас приятно удивит.

Производство модульных домов в Астрахани: произведем быструю оценку стоимости

Оставляйте заявку или позвоните по номеру +79780761562 и получите консультацию по модульным зданиям